Костромская обл., г. Чухлома

Проект дома из бруса 7,8 х 8,8 №22

Цена базового комплекта из бруса, доска: от 1 115 000 руб

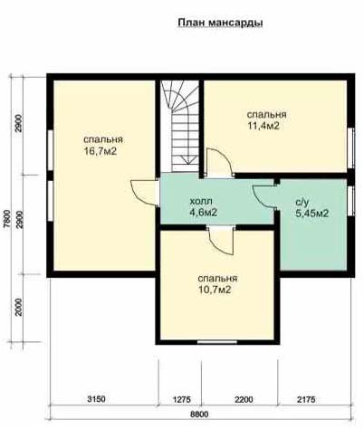
Проект дома из бруса включает в себя мансардный этаж. На первом этаже располагаются холл, санузел, топочная, спальня, гостиная, кухня и веранда. Мансардный этаж включает три спальни, санузел и холл. Если вы заинтересовались реализацией данного проекта на Вашем участке, мы осуществим строительство по этому проекту из качественного бруса. 

Комплектация

  • наружные стены - брус, доска
  • внутренние перегородки - брус, доска
  • балки пола и потолка - брус, доска с шагом 60 см
  • стропильная часть крыши - доска 150*50
  • обрешётка крыши - доска 150*25
  • черновой пол и потолок - доска 150*25 или 100*25
  • брусок черепной 50*50
  • расходный материал: джутовое волокно, нагеля берёзовые, компенсаторы, гвозди, рубероид на кровлю
  • доставка
  • разгрузка
  • сборка дома в тёплый угол

Вернуться к проектам

Остались вопросы по проекту или хотите оставить заявку? Заполните форму, и мы ответим вам в ближайшее время

Отправить сообщение