Костромская обл., г. Чухлома

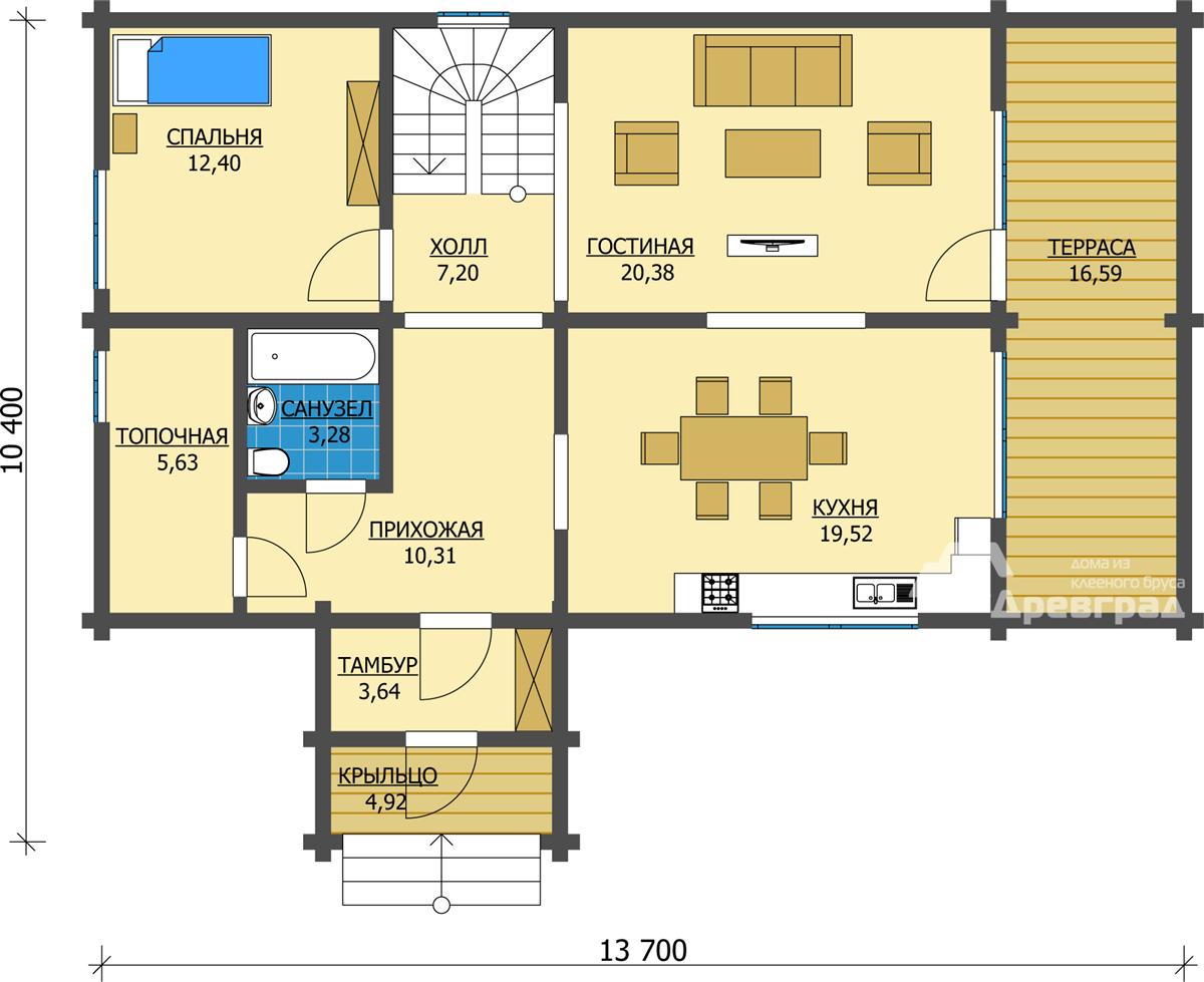
КОТТЕДЖ ИЗ БРУСА 10.4 НА 13.7 ДВУХЭТАЖНЫЙ С ТЕРРАСОЙ №130

Цена базового комплекта из бруса, доска: от 1 320 000 руб

Красивый двухэтажный коттедж из обычного или профилированного бруса в короткие сроки от компании "СрубДома44" Проект отлично подходит для круглогодичного проживания за городом. Планировка позволяет реализовать любые помещения в данном коттедже из бруса. 

Комплектация

  • наружные стены - брус, доска
  • внутренние перегородки - брус, доска
  • балки пола и потолка - брус, доска с шагом 60 см
  • стропильная часть крыши - доска 150*50
  • обрешётка крыши - доска 150*25
  • черновой пол и потолок - доска 150*25 или 100*25
  • брусок черепной 50*50
  • расходный материал: джутовое волокно, нагеля берёзовые, компенсаторы, гвозди, рубероид на кровлю
  • доставка
  • разгрузка
  • сборка дома в тёплый угол

Вернуться к проектам

Остались вопросы по проекту или хотите оставить заявку? Заполните форму, и мы ответим вам в ближайшее время

Отправить сообщение